- Wedding Vendors/
- Wedding and reception venues/
- California venues/
- South Lake Tahoe, CA venues/
- Tahoe Paradise Park
Tahoe Paradise Park
Select services venue
The venue will provide the space, plus a few extras.
Full wedding (ceremony and reception) pricing
Starting at $3,250 for off-peak dates, and $6,500 for peak dates
About this venue
Paradise Park offers a relaxed, scenic Tahoe setting with both indoor and outdoor spaces. The clubhouse hosts up to 150 guests, and the lakeside patio and reserved event lawn expand capacity to 300. Couples enjoy private access to their ceremony and reception areas, including a secluded lakeside lawn and beach section. With mountain views, a peaceful lakefront, and our iconic 1,500‑year‑old ceremony tree, the venue blends natural beauty with flexibility and a truly Tahoe vibe
Our event spaces
Tahoe Paradise Clubhouse
A lakeside ceremony beneath a thousand‑year‑old tree, surrounded by mountains and golden‑hour light.
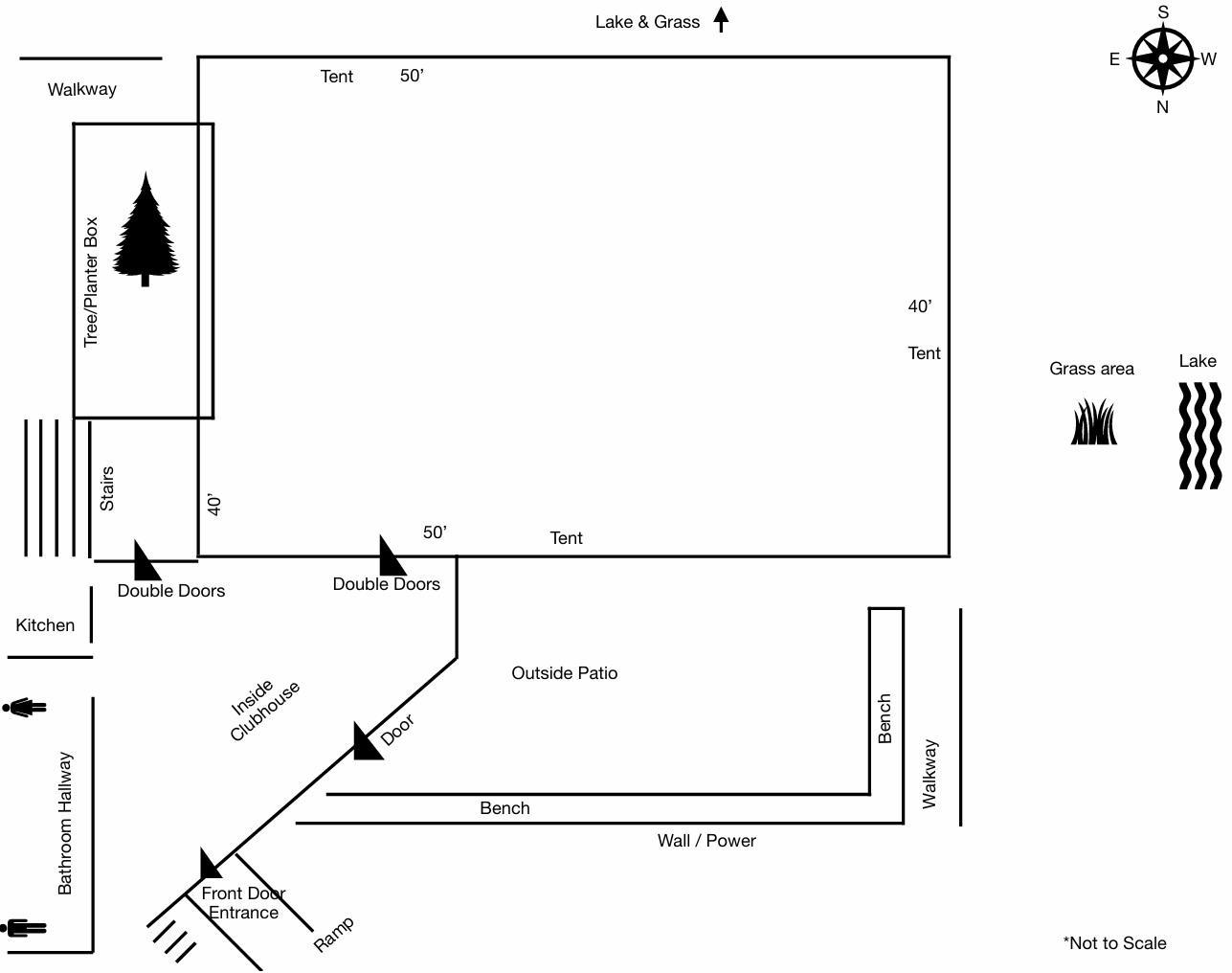
This space features a lakeside ceremony lawn beneath our thousand‑year‑old tree, a fully cordoned‑off private beach and lawns reserved exclusively for your event, a covered 2,000‑square‑foot patio with lighted canopy, an additional 650‑square‑foot uncovered patio, and a 3,300‑square‑foot/2300-square-foot usable clubhouse for indoor gatherings
Guest capacity
50-150 Seated
50-150 Standing
Square footage
3,300
Ideal for
Wedding ceremony, Wedding reception, Rehearsal dinner, Wedding shower, Welcome party, Farewell brunch, Couples luncheon, Baraat, Cocktail hour, Engagement party, After party, Elopement, Other
Guests often feel this space is
“Surprised and delighted”
Included in this room:
- Tables and chairs for up to 120 guests - A selection of 60" round dining tables - Rectangular banquet tables for buffet, gifts, or décor - Wine barrels with matching bar tops for décor or beverage service - Exclusive use of the entire beach - Exclusive use of lawns for further decorations or party games - Kitchen prep area (dessert-drinks fridge, freezer, sink, counters - Serving bar - Restrooms - On‑site parking
Room cost
Clubhouse is part of the package price. Saturday is 12 hours included. Mon to Fri/and Sunday $250/300 above the included 6/8 hours
Tahoe Paradise Clubhouse
A lakeside ceremony beneath a thousand‑year‑old tree, surrounded by mountains and golden‑hour light.
This space features a lakeside ceremony lawn beneath our thousand‑year‑old tree, a fully cordoned‑off private beach and lawns reserved exclusively for your event, a covered 2,000‑square‑foot patio with lighted canopy, an additional 650‑square‑foot uncovered patio, and a 3,300‑square‑foot/2300-square-foot usable clubhouse for indoor gatherings
Guest capacity
50-150 Seated
50-150 Standing
Square footage
3,300
Ideal for
Wedding ceremony, Wedding reception, Rehearsal dinner, Wedding shower, Welcome party, Farewell brunch, Couples luncheon, Baraat, Cocktail hour, Engagement party, After party, Elopement, Other
Guests often feel this space is
“Surprised and delighted”
Included in this room:
- Tables and chairs for up to 120 guests - A selection of 60" round dining tables - Rectangular banquet tables for buffet, gifts, or décor - Wine barrels with matching bar tops for décor or beverage service - Exclusive use of the entire beach - Exclusive use of lawns for further decorations or party games - Kitchen prep area (dessert-drinks fridge, freezer, sink, counters - Serving bar - Restrooms - On‑site parking
Room cost
Clubhouse is part of the package price. Saturday is 12 hours included. Mon to Fri/and Sunday $250/300 above the included 6/8 hours
Available services that can be provided by Tahoe Paradise Park
Services & amenities
- Bar services
- Catering services
- Clean up
- Dance floor
- Dressing room / Bridal Suite
- Event coordinator
- Event rentals
- Event staff
- Liability insurance
- Lighting/Sound
- Pet friendly
- Wheelchair accessible
- Wifi
Transportation & access
- Self parking - paid
- Wheelchair accessible
Reviews
Write a review5.0 out of 5
1 review
- S
Sue
Awesome venue!
We held my daughter’s wedding reception there. What a beautiful spot - the covered clubhouse patio was perfect! Our guests loved the views, the food trucks and the private feel of the reception. And the park manager, Scott, was so accommodating!
Explore other vendors serving South Lake Tahoe, CA
- Supper Club Fine Catering
- Sweet Condesa LLC
- Cristal Stephani Makeup Artist
- Optimo Entertainment
- Epic Thyme
- AnthonyMJr Photography
- Gage & Gold Music
- Allison Joy Photography LLC
- Tiya Studios
- Events By Wise
- Melanoevents
- Happy Wedding Pets
Complete your dream team
- South Lake Tahoe Photographers
- South Lake Tahoe Beauty Professionals
- South Lake Tahoe Bands & DJs
- South Lake Tahoe Florists
- South Lake Tahoe Caterers
- South Lake Tahoe Planners
- South Lake Tahoe Cakes & Desserts
- South Lake Tahoe Videographers
- South Lake Tahoe Bar Services & Beverages
- South Lake Tahoe Officiants
- South Lake Tahoe Event Extras
Other venues in South Lake Tahoe
- Tahoe Church
- Sequoia Mansion By Wedgewood Weddings
- Rough and Ready Vineyards
- Roses & Acorns Creekside Weddings @ Camp Nauvoo
- Naggiar Vineyards
- South of North Brewing Company
- North Tahoe Event Center
- Chateau Davell Winery
- Town & Country Event Center — Sierra Banquet Center
- Gladding Farms
- Fairytale Elope
- Winchester Vista by Wedgewood Weddings
